Front Crossmember height
Forum rules
If you need help logging in, or have question about how something works, use the Support forum located here Support Forum
Complete set of Forum Rules Forum Rules
If you need help logging in, or have question about how something works, use the Support forum located here Support Forum
Complete set of Forum Rules Forum Rules
-
BUSHMIKE
Topic author - Posts: 354
- Joined: Tue Nov 01, 2022 6:46 am
- First Name: Mike
- Last Name: Cushway
- * REQUIRED* Type and Year of Model Ts owned: 1925 TT, 1926 TT, 1926 TT
- Location: Trout Creek, MI
Front Crossmember height
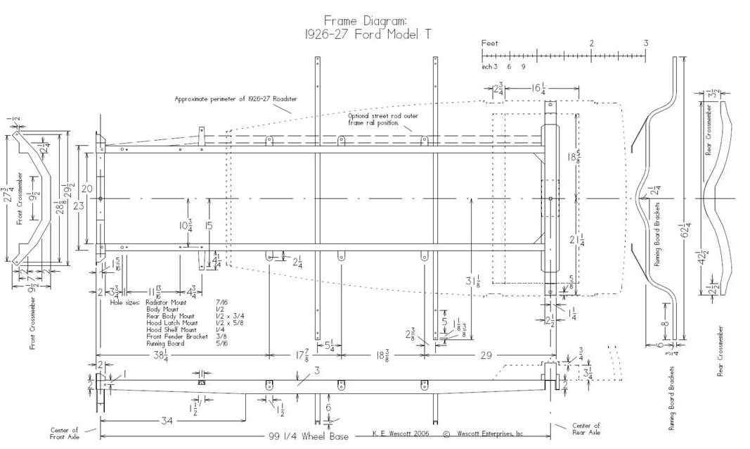
Can someone with a bare T frame measure the drop from the top of the frame rails to the center of the crossmember surface. Lay a straightedge across the rails and measure down. My TT is 5 1/4”. I’m trying to determine the difference between a TT and a std. T.
Thanx in advance!
Thanx in advance!
-
TRDxB2
- Posts: 6414
- Joined: Tue Jan 08, 2019 4:56 pm
- First Name: Frank
- Last Name: Brandi
- * REQUIRED* Type and Year of Model Ts owned: Speedsters (1919 w 1926 upgrades), 1926 (Ricardo Head)
- Location: Moline IL
- Board Member Since: 2018
Re: Front Crossmember height
This diagram is for '26-'27
The past is a great place and I don't want to erase it or to regret it, but I don't want to be its prisoner either.
Mick Jagger
Mick Jagger
-
BRENT in 10-uh-C
- Posts: 447
- Joined: Mon Jan 07, 2019 11:21 am
- First Name: Brent
- Last Name: Terry
- * REQUIRED* Type and Year of Model Ts owned: 1909 Tourabout, 1914 Runabout, 1915 Touring, 1916 Speedster, 1925 Speedster, 1926 Hack
- Location: Eastern Tennessee
- Board Member Since: 1999
- Contact:
Re: Front Crossmember height
Is(n't) there a height difference between the basic brass-era front crossmembers, steel-era, and the New Improved-era crossmembers?
-
BUSHMIKE
Topic author - Posts: 354
- Joined: Tue Nov 01, 2022 6:46 am
- First Name: Mike
- Last Name: Cushway
- * REQUIRED* Type and Year of Model Ts owned: 1925 TT, 1926 TT, 1926 TT
- Location: Trout Creek, MI
Re: Front Crossmember height
My 1934 price list only shows PN# 2853 (Factory. No. 303) listed as 1909-27.
-
Scott_Conger
- Posts: 6613
- Joined: Sun Jan 06, 2019 11:18 am
- First Name: Scott
- Last Name: Conger
- * REQUIRED* Type and Year of Model Ts owned: 1919
- Location: not near anywhere, WY
- Board Member Since: 2005
Re: Front Crossmember height
My '13, '15, and '23 all measure 5 1/4" drop (MOL). Didn't check the '19 but doubt that it is different
more important for you is, "are your radiator mounting holes exactly 21 1/2" on center?"
frames are usually spread here and now is the time to fix it.
you have a lot of riveting/bucking to do.
more important for you is, "are your radiator mounting holes exactly 21 1/2" on center?"
frames are usually spread here and now is the time to fix it.
you have a lot of riveting/bucking to do.
Scott Conger
Tyranny under the guise of law is still Tyranny
NH Full Flow Float Valves™
Obsolete carburetor parts manufactured
Tyranny under the guise of law is still Tyranny
NH Full Flow Float Valves™
Obsolete carburetor parts manufactured
-
Steve Jelf
- Posts: 7359
- Joined: Fri Jan 04, 2019 9:37 pm
- First Name: Steve
- Last Name: Jelf
- * REQUIRED* Type and Year of Model Ts owned: 1923 touring and a few projects
- Location: Parkerfield, Kansas
- Board Member Since: 2007
- Contact:
Re: Front Crossmember height
When you install the rivets I would suggest making it a two-man job — one person to hold the torch and keep the rivet orange, and the other to do the bashing.
The inevitable often happens.
1915 Runabout
1923 Touring
1915 Runabout
1923 Touring
-
Craig Leach
- Posts: 1984
- Joined: Tue Jan 08, 2019 12:22 am
- First Name: craig
- Last Name: leach
- * REQUIRED* Type and Year of Model Ts owned: 1919 Firetruck/1922 Speedster
- Location: Laveen Az
Re: Front Crossmember height
Mike,
All crossmembers should measure the same that way, the difference is the height of the frame (top to bottom ) at the front the TT
frame is about 7/16 inch taller than a car frame. If you can't find a TT crossmember you might give some thought to using a car
crossmember removing the top spring leaf and placing a spacer under the spring/motor mount to align the engine in the frame.
That should give you enough thread to clamp the spring. It will be covered up by the radiator apron.
JAT
Craig.
All crossmembers should measure the same that way, the difference is the height of the frame (top to bottom ) at the front the TT
frame is about 7/16 inch taller than a car frame. If you can't find a TT crossmember you might give some thought to using a car
crossmember removing the top spring leaf and placing a spacer under the spring/motor mount to align the engine in the frame.
That should give you enough thread to clamp the spring. It will be covered up by the radiator apron.
JAT
Craig.
-
BRENT in 10-uh-C
- Posts: 447
- Joined: Mon Jan 07, 2019 11:21 am
- First Name: Brent
- Last Name: Terry
- * REQUIRED* Type and Year of Model Ts owned: 1909 Tourabout, 1914 Runabout, 1915 Touring, 1916 Speedster, 1925 Speedster, 1926 Hack
- Location: Eastern Tennessee
- Board Member Since: 1999
- Contact:
Re: Front Crossmember height
Scott_Conger wrote: ↑Sun Dec 11, 2022 1:27 pmMy '13, '15, and '23 all measure 5 1/4" drop (MOL). Didn't check the '19 but doubt that it is different
more important for you is, "are your radiator mounting holes exactly 21 1/2" on center?"
frames are usually spread here and now is the time to fix it.
you have a lot of riveting/bucking to do.
The reason I ask is I have an original '15 brass radiator (-off of my '15 Touring) that we installed onto a later steel-era chassis when we were building a quickie speedster for Blake. During mock-up assy., the lower tank reinforcing bracket hit the top of the crossmember without the mounts touching the frame. We re-fit it onto the original '15 frame and it had about ¼" of clearance under the lower tank strap. Because we were in a hurry, we just cut a couple pieces of wood and placed under the radiator mount for clearance and all was good. I/we just assumed it was because we were using a later frame. Unfortunately this car is no longer a car, but I have attached a few various pix of it where maybe you can see what we encountered. Also, here is a link to a video that you might be able to tell more about the frame and see the spacer. ( https://www.youtube.com/watch?v=7BeAHmCMztI ) Thanks!!
-
Scott_Conger
- Posts: 6613
- Joined: Sun Jan 06, 2019 11:18 am
- First Name: Scott
- Last Name: Conger
- * REQUIRED* Type and Year of Model Ts owned: 1919
- Location: not near anywhere, WY
- Board Member Since: 2005
Re: Front Crossmember height
Brent my cars are assembled so there might be information hidden by the brass shroud on the radiator that I cannot detect regarding potential for cross member differences.
The earlier radiators sits down hard on leather pads on the frame and not on a lower spring, so that's a difference?
The earlier radiators sits down hard on leather pads on the frame and not on a lower spring, so that's a difference?
Scott Conger
Tyranny under the guise of law is still Tyranny
NH Full Flow Float Valves™
Obsolete carburetor parts manufactured
Tyranny under the guise of law is still Tyranny
NH Full Flow Float Valves™
Obsolete carburetor parts manufactured
-
DanTreace
- Posts: 3960
- Joined: Sun Jan 06, 2019 10:56 am
- First Name: Dan
- Last Name: Treace
- * REQUIRED* Type and Year of Model Ts owned: '23 cutoff pickup, '27 touring
- Location: North Central FL
- Board Member Since: 2000
- Contact:
Re: Front Crossmember height
The passenger car T and the truck TT use different frames and front crossmembers.
The TT frame assembly is TT-1119.
The TT front crossmember is TT-1122.
Photos from prior thread shows the difference in front crossmembers
The TT frame assembly is TT-1119.
The TT front crossmember is TT-1122.
Photos from prior thread shows the difference in front crossmembers
The best way is always the simplest. The attics of the world are cluttered up with complicated failures. Henry Ford
Don’t find fault, find a remedy; anybody can complain. Henry Ford
Don’t find fault, find a remedy; anybody can complain. Henry Ford
-
BUSHMIKE
Topic author - Posts: 354
- Joined: Tue Nov 01, 2022 6:46 am
- First Name: Mike
- Last Name: Cushway
- * REQUIRED* Type and Year of Model Ts owned: 1925 TT, 1926 TT, 1926 TT
- Location: Trout Creek, MI
Re: Front Crossmember height
Thank you Dan,
EXACTLY what I was looking for!
EXACTLY what I was looking for!
-
ABoer
- Posts: 231
- Joined: Mon Jan 07, 2019 2:41 pm
- First Name: Anthonie
- Last Name: Boer
- * REQUIRED* Type and Year of Model Ts owned: 1912 touring 1923 roadster 1925 pickup
- Location: Klaaswaal NL
Re: Front Crossmember height
To bring the distance of the radiateur bolts to the 21.5 inch centre to centre .
Toon
Toon
-
BUSHMIKE
Topic author - Posts: 354
- Joined: Tue Nov 01, 2022 6:46 am
- First Name: Mike
- Last Name: Cushway
- * REQUIRED* Type and Year of Model Ts owned: 1925 TT, 1926 TT, 1926 TT
- Location: Trout Creek, MI
Re: Front Crossmember height
Anthonie,
I like that!
I like that!