Frame Drwaing / Blueprint

Discuss all things Model T related.
Forum rules
If you need help logging in, or have question about how something works, use the Support forum located here Support Forum
Complete set of Forum Rules Forum Rules

Topic author
Tea_time_racer
Posts: 80
Joined: Sun Jan 06, 2019 1:23 pm
First Name: Antonio
Last Name: Piery
* REQUIRED* Type and Year of Model Ts owned: some very old cars
Location: Nor CA

Frame Drwaing / Blueprint

Post by Tea_time_racer » Mon Jan 21, 2019 11:13 am

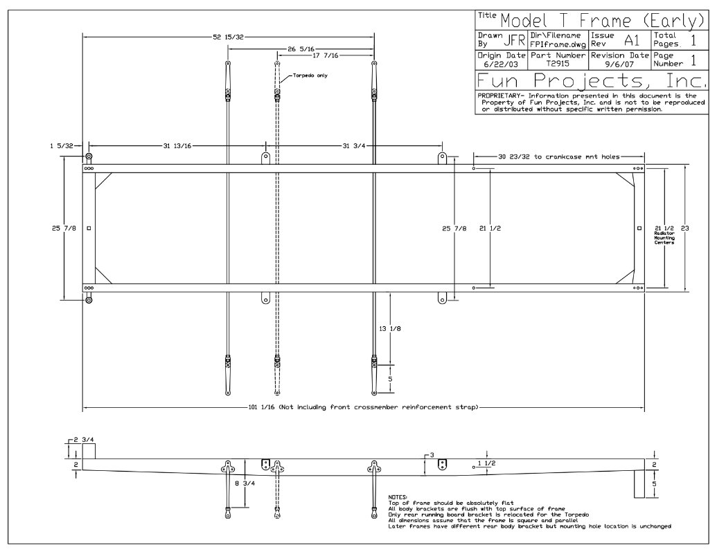
I am looking for a frame drawing / blueprint that shows the correct frame tapper and hole locations on the frame. Preferably a 1912-1914 frame but can work with other year drawing if it will get me close. The ones I have been finding are from hot rod shops and don't give the proper dimension.

User avatar

Steve Jelf
Posts: 7362
Joined: Fri Jan 04, 2019 9:37 pm
First Name: Steve
Last Name: Jelf
* REQUIRED* Type and Year of Model Ts owned: 1923 touring and a few projects
Location: Parkerfield, Kansas
Board Member Since: 2007
Contact:

Re: Frame Drwaing / Blueprint

Post by Steve Jelf » Mon Jan 21, 2019 11:24 am

FPIframe.jpg
Model_T_Frame_Identification_Chart_V2-356806.jpg
The inevitable often happens.
1915 Runabout
1923 Touring


Topic author
Tea_time_racer
Posts: 80
Joined: Sun Jan 06, 2019 1:23 pm
First Name: Antonio
Last Name: Piery
* REQUIRED* Type and Year of Model Ts owned: some very old cars
Location: Nor CA

Re: Frame Drwaing / Blueprint

Post by Tea_time_racer » Mon Jan 21, 2019 11:29 am

Steve, Thank You! This is what I needed.

Post Reply Previous topicNext topic