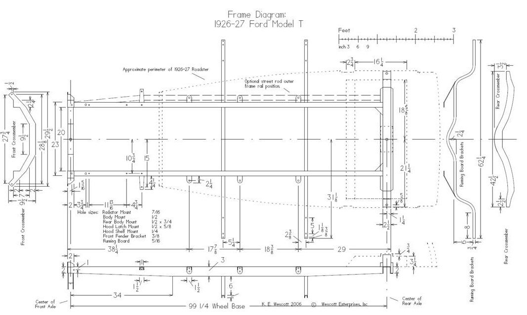
My resent thread on the firewall transition for my WWI ambulance has got me thinking about 50 steps backward in this project, but might be the "right" thing to do. Rather than use the existing 27 depot hack sheet metal and build the wood ambulance body to complete, I have access to a 20 roadster project that will probably never get complete and the sheet metal body is toast. So, before I get my brain wrapped around all that is involved in this, is it just labor for me to use the 20 fenders, running boards, headlights and irons, fender irons, radiator shell and hood and firewall and cowl and just bolt it right up to my 27 chassis?
My 27 engine and electrical is running decent, so I'll leave the coil box under the hood and try to make everything else I can using the 20 sheet metal. It will still have the 27 demountables 21" tires and wheels. And, before you ask, I cannot use the 20 frame and running gear as that is a family issue. But I can "borrow" all the sheet metal off it until that project moves the front burner.
So, doable? Or am I trying to get a square peg into a round hole?
17/23 sheet metal on 27 frame?
Forum rules
If you need help logging in, or have question about how something works, use the Support forum located here Support Forum
Complete set of Forum Rules Forum Rules
If you need help logging in, or have question about how something works, use the Support forum located here Support Forum
Complete set of Forum Rules Forum Rules
-
signsup
Topic author - Posts: 472
- Joined: Thu Jan 10, 2019 12:56 pm
- First Name: Robert
- Last Name: Brough
- * REQUIRED* Type and Year of Model Ts owned: 1915 War Wagon 1927 Depot Hack 1927 TT
- Location: Winston, GA
- Board Member Since: 2015
17/23 sheet metal on 27 frame?
Why do we drive on parkways and park on driveways?
A bunch of old cars
Sometimes they run.
Sometimes, they don't.
A bunch of old cars
Sometimes they run.
Sometimes, they don't.
-
DanTreace
- Posts: 4089
- Joined: Sun Jan 06, 2019 10:56 am
- First Name: Dan
- Last Name: Treace
- * REQUIRED* Type and Year of Model Ts owned: '23 cutoff pickup, '27 touring
- Location: North Central FL
- Board Member Since: 2000
- Contact:
Re: 17/23 sheet metal on 27 frame?
Big work is cutting away the 26-27 front frame fender ears and then drilling holes to adapt the early fender/headlamp brackets. Rear fenders will need special adaption to hang off your body.
Last edited by DanTreace on Sat Feb 24, 2024 1:03 pm, edited 1 time in total.
The best way is always the simplest. The attics of the world are cluttered up with complicated failures. Henry Ford
Don’t find fault, find a remedy; anybody can complain. Henry Ford
Don’t find fault, find a remedy; anybody can complain. Henry Ford
-
tdump
- Posts: 1430
- Joined: Sun Jan 06, 2019 7:00 pm
- First Name: Mack
- Last Name: Cole
- * REQUIRED* Type and Year of Model Ts owned: TT. T express pickup,speedster project.
- Location: North Carolina
Re: 17/23 sheet metal on 27 frame?
Splash aprons will require the rear mounting hole to be moved forward a few inches as well.
If you can't help em, don't hinder em'
-
TRDxB2
- Posts: 6587
- Joined: Tue Jan 08, 2019 4:56 pm
- First Name: Frank
- Last Name: Brandi
- * REQUIRED* Type and Year of Model Ts owned: Speedsters (1919 w 1926 upgrades), 1926 (Ricardo Head)
- Location: Moline IL
- Board Member Since: 2018
Re: 17/23 sheet metal on 27 frame?
The issue with mounting is hole alignment to existing holes. Since you have matching splash aprons, fender supports to front fenders that should not cause issues. Also the Headlight arms work with the supports.
I don't think you need rear fenders for a WW1 Ambulance
I don't think you need rear fenders for a WW1 Ambulance
The past is a great place and I don't want to erase it or to regret it, but I don't want to be its prisoner either.
Mick Jagger
Mick Jagger
-
signsup
Topic author - Posts: 472
- Joined: Thu Jan 10, 2019 12:56 pm
- First Name: Robert
- Last Name: Brough
- * REQUIRED* Type and Year of Model Ts owned: 1915 War Wagon 1927 Depot Hack 1927 TT
- Location: Winston, GA
- Board Member Since: 2015
Re: 17/23 sheet metal on 27 frame?
Hmmm...food for thought. Part of my design "dilema" is the Ford Model T 1915 ambulance DID use rear fenders and I have a set. And, yes, I do have the 17/23 splsh aprons as well. So, if I used metal fenders to lean towards the 1915 version, they would bolt to the correct running boards and the splash shields and I could bolt them direct to the wooden ambulance body and not deal with fender irons on the rear.
I do not have correct headlights or mounting uprights.
Hmm....
Anyways, a good day on the table saw.
I do not have correct headlights or mounting uprights.
Hmm....
Anyways, a good day on the table saw.
Why do we drive on parkways and park on driveways?
A bunch of old cars
Sometimes they run.
Sometimes, they don't.
A bunch of old cars
Sometimes they run.
Sometimes, they don't.
-
TRDxB2
- Posts: 6587
- Joined: Tue Jan 08, 2019 4:56 pm
- First Name: Frank
- Last Name: Brandi
- * REQUIRED* Type and Year of Model Ts owned: Speedsters (1919 w 1926 upgrades), 1926 (Ricardo Head)
- Location: Moline IL
- Board Member Since: 2018
Re: 17/23 sheet metal on 27 frame?
1916 and earlier Model T's have the characteristic brass radiator. Since you have a later style, perhaps you should lean towards a late 1916/17 Ambulance look. That would make some of the T part year inconsistencies blend together better and be less noticeable/arguablesignsup wrote: ↑Sat Feb 24, 2024 5:51 pmHmmm...food for thought. Part of my design "dilema" is the Ford Model T 1915 ambulance DID use rear fenders and I have a set. And, yes, I do have the 17/23 splsh aprons as well. So, if I used metal fenders to lean towards the 1915 version, they would bolt to the correct running boards and the splash shields and I could bolt them direct to the wooden ambulance body and not deal with fender irons on the rear.
I do not have correct headlights or mounting uprights.
Hmm....
Anyways, a good day on the table saw.
framing 1.JPGframing 3.JPG
The past is a great place and I don't want to erase it or to regret it, but I don't want to be its prisoner either.
Mick Jagger
Mick Jagger
-
signsup
Topic author - Posts: 472
- Joined: Thu Jan 10, 2019 12:56 pm
- First Name: Robert
- Last Name: Brough
- * REQUIRED* Type and Year of Model Ts owned: 1915 War Wagon 1927 Depot Hack 1927 TT
- Location: Winston, GA
- Board Member Since: 2015
Re: 17/23 sheet metal on 27 frame?
Good point. My last War Wagon WWI Model T light patrol vehicle was all OD Green, but I wasn't going to paint over that brass radiator. So, good point. I'll sleep on it, but it might be 27 sheet metal and no fenders, the wooden deck plank look, which I hate, but it would be more correct than metal fenders in the rear.
I am going to try to fit the 17/23 metal top cowl on my firewall to solve that situation.
Thanks for all the input, guys.
I am going to try to fit the 17/23 metal top cowl on my firewall to solve that situation.
Thanks for all the input, guys.
Why do we drive on parkways and park on driveways?
A bunch of old cars
Sometimes they run.
Sometimes, they don't.
A bunch of old cars
Sometimes they run.
Sometimes, they don't.